Off Market: 12 Unit Approved Development Project Ashmont Station
$1,599,900
Overview
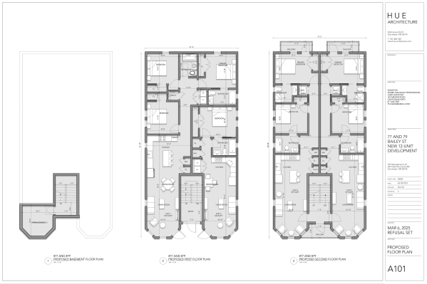
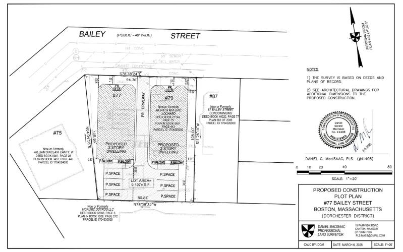
Approved 12-Unit Development Near Ashmont Station – Income-Producing with Expansion Potential
Currently an occupied 3-family generating $8,000/month in rental income, this property is located just two blocks from Ashmont MBTA Station. Fully approved for redevelopment into 12 residential units:
- (2) One-Bedroom Units
- (8) Two-Bedroom Units
- (2) Three-Bedroom Units
Plans include over 9,000 square feet of living space and off-street parking for 6 vehicles. This is a prime Dorchester location just 15 minutes from Downtown Boston—ideal for condo sales or rental portfolio expansion.
Contact us for questions
doyou@needflips.com
857-731-8400
All offers must be accompanied by a proof of funds.
Details
-
Property ID:887
-
Beds:24
-
Baths:22
-
Price ($):$1,599,900
-
Status:














