Off Market Permitted Shovel Ready 3 Family (Lot) McLellan St Dorchester, MA
$399,000
Overview
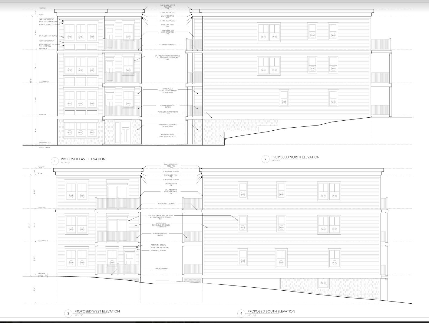
Off-Market Deal
Fully Permitted Lot, Ready to Build w/ approved Plans
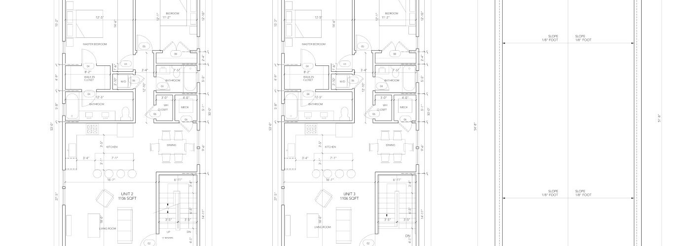
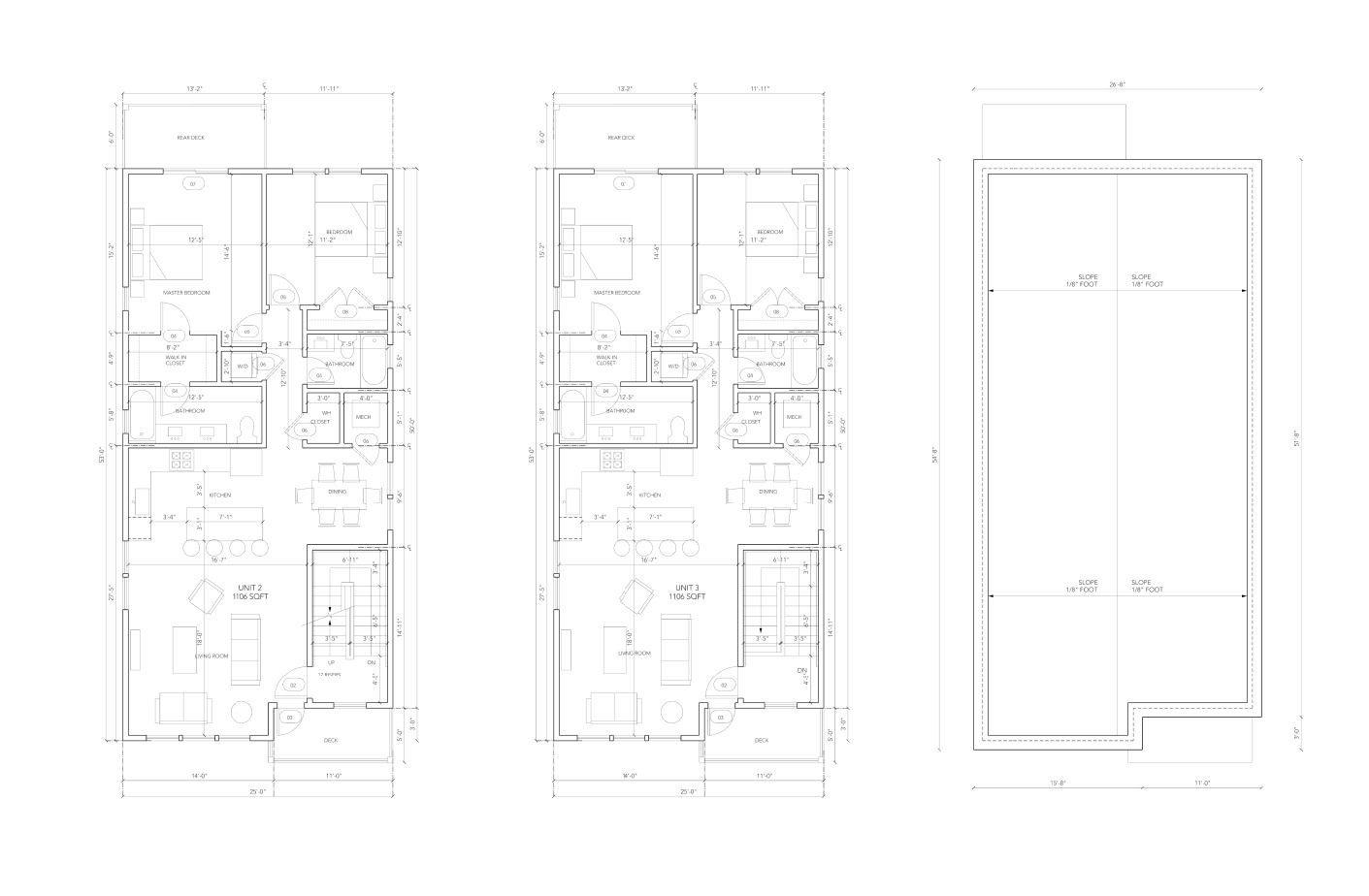
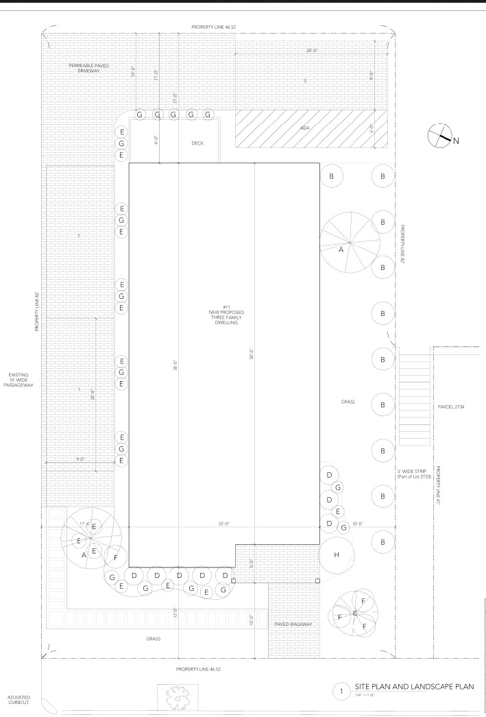
Lot Size – 3,815 SqFt
Details
-
Property ID:196
-
Home area (sqft):3,815 sqft
-
Price ($):$399,000
-
Status:




