Off-Market Permitted Single Family (Addition and Renovation) Bellevue Rd Quincy, MA
$719,000
Overview
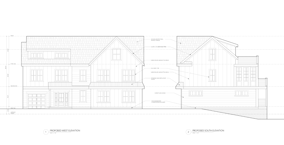
Prime opportunity in the highly sought-after Squantum neighborhood! This fully permitted lot, featuring stunning water views, is ready for renovation and expansion. Create your dream home and enjoy all the benefits this vibrant community has to offer.
About:
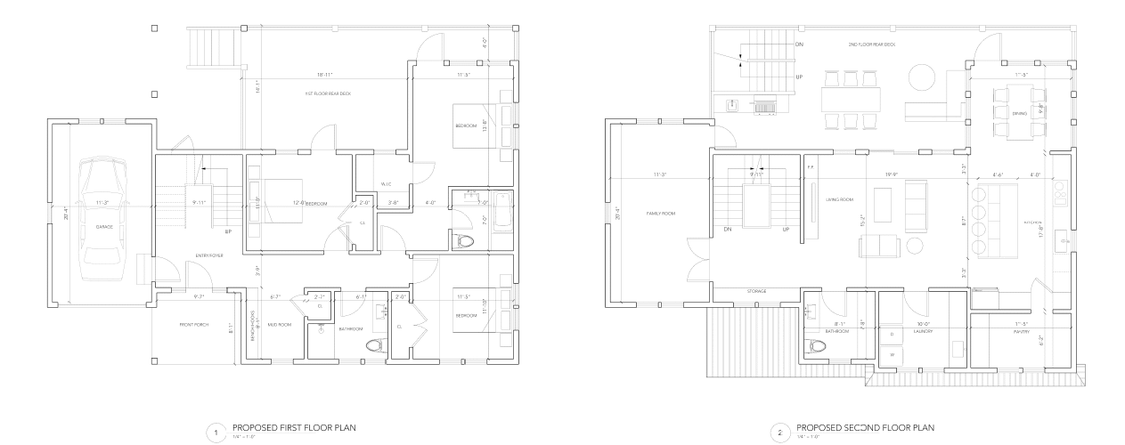
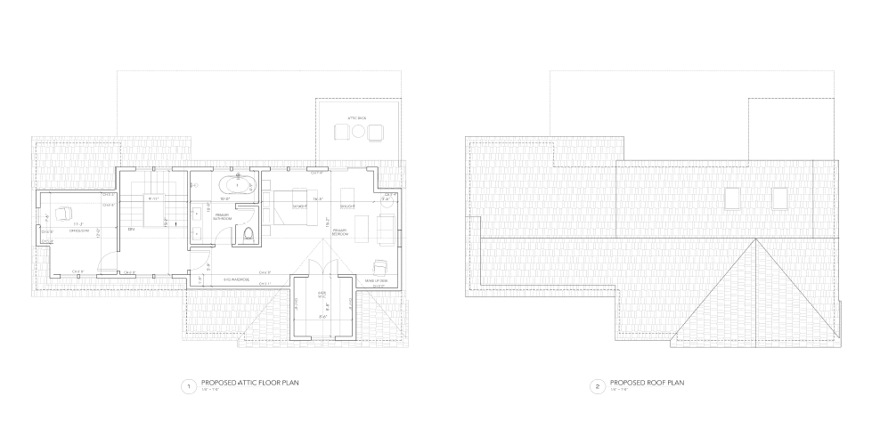
4 Bedroom / 3 Bathroom
Living Area: 3,617 Sq Ft
Lot Size: 6,579 Sq Ft
Sold Comps:
Date:
7/14/23
Address:
30 Sunrise Rd, Quincy
Sqft: 3,219
Sold Price: 1,904,589
Contact Us:
doyou@needflips.com
(508) 731-8400
(Serious inquiries only. Showings upon request)
Details
-
Property ID:450
-
Home area (sqft):3617 sqft
-
Beds:4
-
Baths:3
-
Price ($):$719,000
-
Status:











